NEUBAU Moderne Produktionshalle ab Sept / Okt zu vermieten!
Beschreibung:
Moderne Produktionshalle Neubau ab September / Oktober zu vermieten!Sind Sie auf der Suche nach einer Produktionshalle?
Dann haben wir das passende Objekt in unserem Angebot.
Die Halle wird neu gebaut und kann ab September / Oktober gemietet werden. Sie wird nach neustem Wärmeschutzstandard gebaut und ist beheizt.
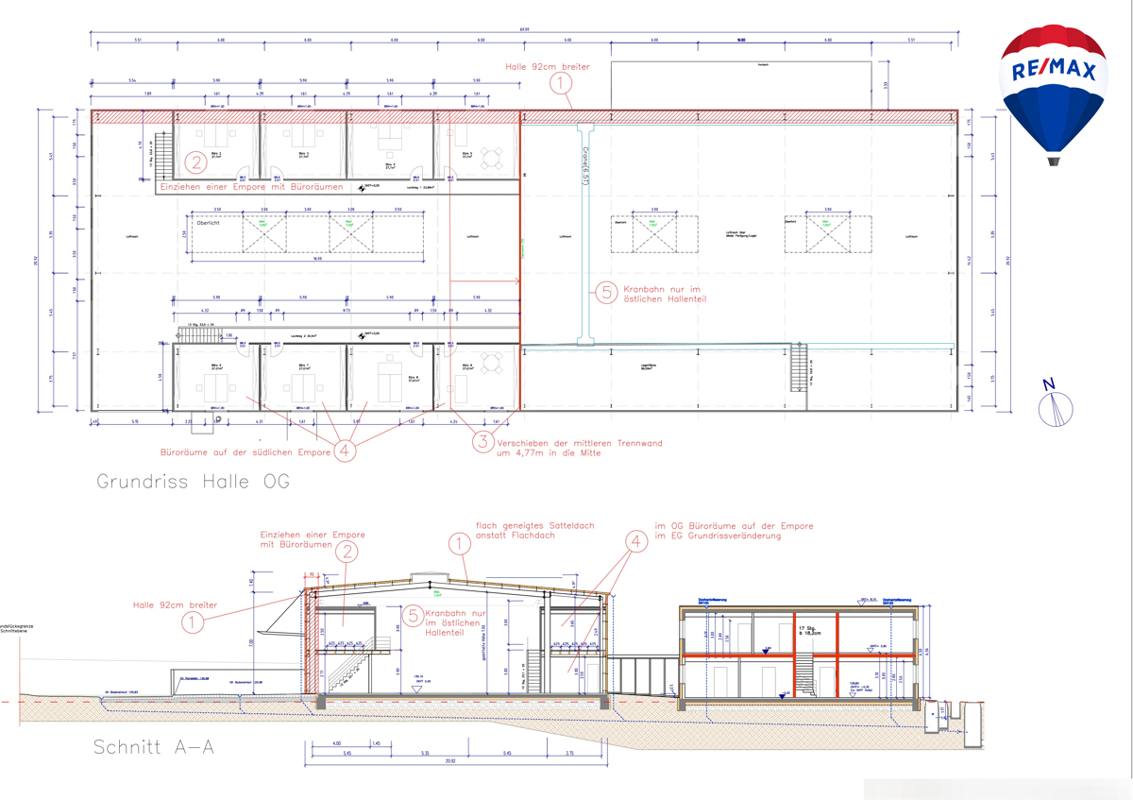
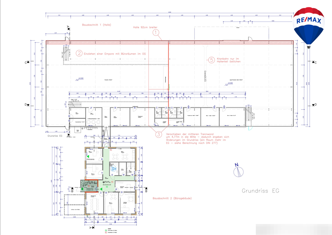
Die Gesamtfläche beträgt ca. 696m², die Produktionsfläche ist ca. 536m².
Zur Halle gehörten noch Büroräume, Parkplätze, Toiletten, Umkleideräume und ein Pausenraum.
Haben wir Ihr Interesse geweckt?
Dann rufen Sie jetzt an und vereinbaren Sie einen Termin zur Besichtigung der Immobilie!
Nermin Cömertpay
Immobilienmaklerin IHK
Tel: 0176 34151621
E-Mail: nermin.coemertpay@remax.de
Wir freuen uns auf Ihren Anruf!
Die Adresse der Immobilie wird auf Wunsch des Eigentümers erst bei einer Terminvergabe bekannt gegeben.
Wir bitten um Verständnis.
Lagebeschreibung:
Lage ist eine Stadt in Nordrhein-Westfalen und gehört zum Kreis Lippe.Die Halle wird im Industriegebiet von Lage gebaut. Fußläufig ist eine Bushaltestelle zu erreichen.
Ins Zentrum nach Lage sind es ca. 6.5 Kilometer mit dem Auto zu fahren.
Ausstattung:
Energieausweis:
Ausstattungsbeschreibung:
- Neubau mit Fertigstellung Sept / Okt- ca. 696m² Gesamtfläche
- ca. 536m² Produktionsfläche
- modern
- 2 Büroräume
- Toiletten
- Umkleideräume
- Pausenraum
- Hallentor
- Brückenkran
Sonstige Angaben:
RE/MAX Bielefeld-MitteIhre Zufriedenheit liegt uns am Herzen.
Wenn Sie innerhalb von 24 Stunden auf Ihre Anfrage keine Rückantwort erhalten haben, rufen Sie bitte unsere Hotline unter der Nummer: +49 521 305 151 80 an oder schreiben Sie uns eine E-Mail an: bielefeld-mitte@remax.de
Bitte haben Sie Verständnis dafür, dass wir nur Anfragen mit kompletten Kontaktdaten (Name, Anschrift, Telefonnummer und E-Mail Adresse) beantworten können.
Die Informationen in diesem Exposé berufen auf Angaben, die wir vom Veräußerer und / oder Dritten erhalten haben. Für deren Richtigkeit und Vollständigkeit übernehmen wir keine Haftung.
Wenn Sie jemanden kennen, der jetzt oder später seine Immobilie verkaufen möchte, melden Sie sich gerne bei uns.
Es winkt Ihnen eine Tippgeberprovision.
Wer wir sind?
- Weltweit in über 100 Ländern mit über 100.000 RE/MAX Immobilienmaklern die Nummer 1.
- Wir vermitteln Ihre Immobilie und haben über 1.000 Suchkunden, die sofort kaufen können.
- Was ist Ihre Immobilie wert? DEKRA zertifizierte kostenlose Wertermittlung Ihrer Immobilie durch unsere geschulten RE/MAX Immobilienmakler!
Sie möchten auch in den Traumberuf als RE/MAX Immobilienmakler einsteigen, dann bewerben Sie sich JETZT!
RE/MAX Immobilienmakler (w/m/d)
Gerne auch als Quereinsteiger oder als geförderter Umschüler.
Bewerben Sie sich, wenn Sie im Umkreis von 100 km wohnen.
RE/MAX Bielefeld-Mitte - Immokontor24 GmbH
Hagenbruchstr. 2b
33602 Bielefeld
Telefon: +49 521 305 151 80
E-Mail: bielefeld-mitte@remax.de
Wir freuen uns auf die Zusammenarbeit.
Sie wollen mehr erfahren?
Wenn Sie uns eine Nachricht über das Kontaktformular senden, melden wir uns schnellstmöglich bei Ihnen:






