Einfamilienhaus - Kauf - Lage

Gestalten Sie Ihr neues Zuhause in Lage! Renovierungsbedürftiges Juwel mit grenzenlosem Potenzial!

189.900 €
Lage
Objektart
Haus
Objekttyp
Einfamilienhaus
Vermarktungsart
Kauf
PLZ
32791
Ort
Lage
Zimmer
7
Schlafzimmer
4
Badezimmer
2
Wohnfläche
203 m²
Grundstück
290 m²
Etagenzahl
3
Provision
zuzüglich 4,76% Maklerprovision inkl. 19% MwSt.

Beschreibung:

Geben Sie Ihrem neuen Traumhaus den individuellen Touch!

Dieses einzigartige Objekt wurde ca. im Jahr 1930 erbaut und bietet Ihnen die Möglichkeit, es ganz nach Ihren eigenen Vorstellungen zu gestalten.

Mit handwerklichem Geschick können Sie dieses großzügige Haus mit ca. 203 m² Wohnfläche und ca. 21 m² Ausbaureserve in ein wahres Juwel verwandeln!

Viele der Gewerke im Haus sind bereits mehrere Jahrzehnte alt und warten darauf, von Ihnen wiederbelebt zu werden.

Mit seinen großzügigen Räumlichkeiten bietet das Haus ausreichend Platz für individuelle Gestaltungsmöglichkeiten.

Es existieren bereits Pläne, die einen Ausbau zu einem einladenden Einfamilienhaus mit einer separaten Einliegerwohnung und eigenem Zugang vorsehen.

Das Erdgeschoss umfasst ca. 82 m² und verfügt über ein gemütliches Wohnzimmer, ein Kinderzimmer, eine Küche, ein Esszimmer, ein Badezimmer, eine praktische Waschküche, einen Abstellraum sowie einen einladenden Flur.
Diese Ebene bietet Ihnen eine ideale Gelegenheit, Ihre eigenen Wohnträume zu verwirklichen.

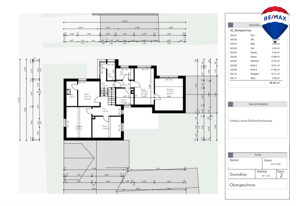
Das Obergeschoss erstreckt sich über ca. 100 m² und präsentiert sich mit einem weiteren geräumigen Wohnzimmer, einem Schlafzimmer, zwei Kinderzimmern, einer Küche, einem Esszimmer, einem Badezimmer, einem separaten WC, einem zusätzlichen Abstellraum sowie zwei Fluren.
Auf dieser Etage steht Ihnen eine großzügige Wohnfläche für eine Familie mit individuellem Raumbedarf zur Verfügung.

Das Dachgeschoss bietet zusätzliche ca. 21 m² Ausbaureserve und ist ideal für ein Arbeitszimmer sowie zwei Abstellräume geeignet.
Zwei weitere Flure vervollständigen diese Ebene und bieten flexible Nutzungsmöglichkeiten.

Besonders hervorzuheben sind die beiden separaten Eingänge im Erdgeschoss, die den Bewohnern eine unabhängige Nutzung ermöglichen.

Zudem ist das Haus teilunterkellert und bietet mit weiteren Räumen zusätzlichen Stauraum zur individuellen Nutzung.

Das Haus eignet sich ideal als Mehrgenerationenhaus, bietet aber auch die Möglichkeit einer Vermietung der Wohneinheiten zur Kapitalanlage.



Haben wir Ihr Interesse geweckt?

Dann rufen Sie jetzt an und vereinbaren Sie einen Termin zur Besichtigung der Immobilie!


Nermin Cömertpay
Immobilienmaklerin IHK §34c
+49 (0) 176 34 15 16 21

Zeynep Bostanci
Immobilienmaklerin IHK §34c
+49 (0) 151 12 38 09 07



Wir freuen uns auf Ihren Anruf!


Ein Energieausweis ist für diese Immobilie nicht erforderlich, da sie denkmalgeschützt ist.

Der Energieausweis ist beantragt und wird erstellt.

Lagebeschreibung:

Dieses Einfamilienhaus befindet sich in Lage.

Es liegt in einer attraktiven Wohngegend mit guter Infrastruktur.
Einkaufsmöglichkeiten, Schulen, Kindergärten und öffentliche Verkehrsmittel befinden sich in unmittelbarer Nähe und ermöglichen Ihnen eine bequeme Erreichbarkeit aller wichtigen Einrichtungen des täglichen Bedarfs.

Durch die Nähe zu der B66 und der B239 besteht eine gute Verkehrsanbindung nach Lemgo, Bielefeld, Herford, Detmold und die weitere Umgebung.

Ausstattung:

Energieausweis:

Baujahr:
1930
Energieausweis:
liegt zur Besichtigung vor

Ausstattungsbeschreibung:

Einfamilienhaus

- vollständig entkernt
- Baujahr ca. 1930
- Grundstücksgröße ca. 290 m²
- Wohnfläche ca. 203 m²
- 7 Zimmer:
EG ca. 82 m²:
1 Wohnzimmer
1 Kinderzimmer
1 Küche
1 Esszimmer
1 Badezimmer
1 Waschküche
1 Abstellraum
1 Eingang
1 Flur

OG ca. 100 m²:
1 Wohnzimmer
1 Schlafzimmer
2 Kinderzimmer
1 Küche
1 Esszimmer
1 Badezimmer
1 WC
1 Abstellraum
2 Flure

DG ca. 21 m² (Ausbaureserve):
1 Arbeitszimmer
2 Abstellräume
2 Flure

- 2 separate Eingänge im EG
- teilunterkellert

Sonstige Angaben:

RE/MAX Winner Team - Bielefeld

Ihre Zufriedenheit liegt uns am Herzen.
Wir freuen uns auf die Zusammenarbeit.

Wenn Sie innerhalb von 24 Stunden auf Ihre Anfrage keine Rückantwort erhalten haben, rufen Sie bitte unsere Hotline unter der Nummer: 0521/30 51 51 80 an oder schreiben Sie uns eine E-Mail an:
bielefeld-mitte@remax.de

Bitte haben Sie Verständnis dafür, dass wir nur Anfragen mit kompletten Kontaktdaten (Name, Anschrift, Telefonnummer und E-Mail Adresse) beantworten können.

Wenn Sie jemanden kennen, der jetzt oder später seine Immobilie verkaufen möchte, melden Sie sich gerne bei uns.
Es winkt Ihnen eine Tippgeberprovision.

DEKRA zertifizierte kostenlose Wertermittlung Ihrer Immobilie durch unsere geschulten RE/MAX Immobilienmakler!

Was ist Ihre Immobilie wert?

Wir vermitteln Ihre Immobilie und haben über 1.000 Suchkunden, die sofort kaufen können.

Weltweit in über 100 Ländern mit über 100.000 RE/MAX Immobilienmaklern die Nummer 1.

RE/MAX Immobilienmakler (m/w/d)

Sie möchten auch in den Traumberuf als RE/MAX Immobilienmakler einsteigen, dann bewerben Sie sich JETZT!

Gerne auch als Quereinsteiger oder als geförderter Umschüler.
Bewerben Sie sich, wenn Sie im Umkreis von 100 km wohnen.

Immo Estate UG
Tel: 0521/30 51 51 80
E-Mail: bielefeld-mitte@remax.de
www.remax.de/bielefeld


Die Informationen in diesem Exposé berufen auf Angaben, die wir vom Veräußerer und / oder Dritten erhalten haben.
Für deren Richtigkeit und Vollständigkeit übernehmen wir keine Haftung.
Nermin Cömertpay
Nermin Cömertpay
Immo Estate GmbH
+49 (0) 176 34 15 16 21
Jeder Lizenznehmer ist ein rechtlich eigenständiges Unternehmen und handelt auf eigene Rechnung und Verantwortung.