Haus mit Büro + Lager + Halle + Baugrundstück
Beschreibung:
Kaufpreis: Kauf gegen GebotGewerbe- und Wohnimmobilie
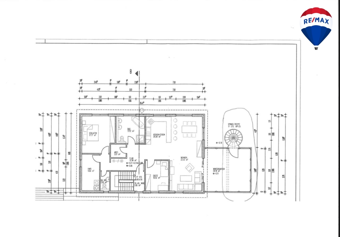
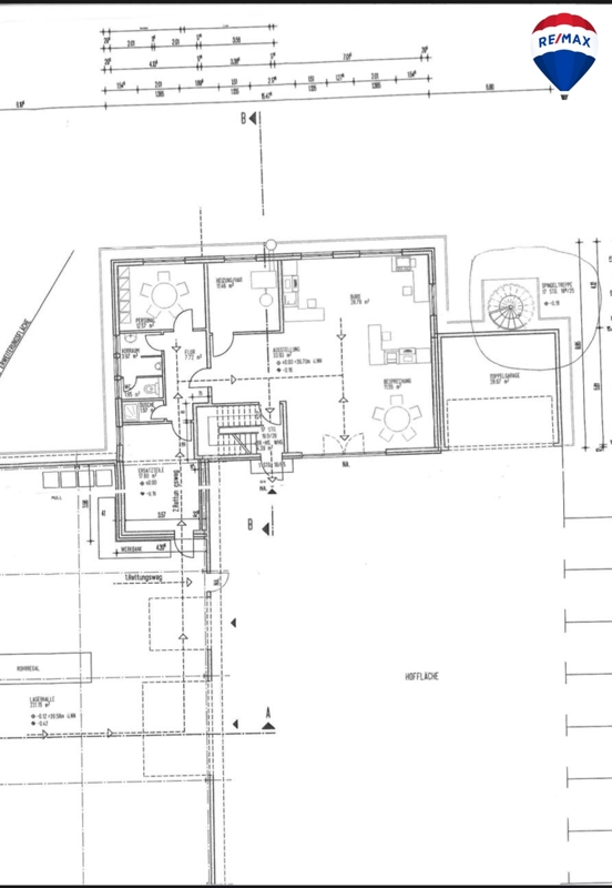
Flächenaufteilung:
Gewerbefläche im Erdgeschoss: 403,92 m² inkl. Büroräume, Lagerflächen und Nebenräumen.
Wohnung im 1 Obergeschoss: 146,46 m², inkl. Wintergarten
Grundstücksgröße ca. 3.908,00 m²
Diese vielseitige Immobilie bietet die Möglichkeit, Wohnen und Arbeiten ideal zu kombinieren. Im Erdgeschoss befinden sich großzügige Gewerbeflächen mit Büroräumen, während das Obergeschoss eine geräumige Wohnung mit Wintergarten beherbergt.
- Das Grundstück ist komplett umzäunt
- Das Grundstück hat eine Einfahrt mit einem Tor/Metalltor
- Auf dem Grundstück befinden sich rechts Stellplätze, wo das Material für eine Überdachung schon da ist, wo eine Pv-Anlage befestigt werden kann.
Stellplätze direkt vor der Halle sowie eine Doppelgarage.
Das Objekt wird aus Altersgründen zum Verkauf angeboten.
Haben wir Ihr Interesse geweckt? Kontaktieren Sie uns gerne für weitere Informationen oder eine Besichtigung.
Lagebeschreibung:
In Rahden im Industriegebiet.Ausstattung:
Energieausweis:
- Baujahr:
- 2000
- Energieausweis:
- liegt zur Besichtigung vor
- wesentlicher Energieträger:
- Pelletheizung
Ausstattungsbeschreibung:
Mit dieser Immobilie haben Sie kaum Nebenkosten, da die Immobilie im Bereich Energie bestens ausgestattet ist.->Das Dach ist größtenteils mit Pv-Anlage/Solar Anlage ausgestattet
-> es ist zusätzlich auch eine Pallet Heizung vorhanden
-> In der Halle ist bei Bedarf eine Heizanlage
-> Im Erdgeschoss sind die Räumlichkeiten für Ausstellungsfläche vorhanden.
-> Die Halle ist als Kalthalle
- Im Erdgeschoss sind die Büro- und Ausstellungsflächen beheizt und können bei Bedarf auch als Wohnung umgebaut werden
- Im Obergeschoss ist der Wohnbereich komplett saniert und neu verfliest
-> Das Bad ist mit luxuriösen Markenendgeräten ausgestattet
->Inkl. der sehr teuren und hochwertigen Küche mit E-Geräten
-> Exklusiver als Anbau, wie ein Wintergarten im 1 OG angebaut
Sonstige Angaben:
RE/MAX Bielefeld-MitteIhre Zufriedenheit liegt uns am Herzen.
Wenn Sie innerhalb von 24 Stunden auf Ihre Anfrage keine Rückantwort erhalten haben, rufen Sie bitte unsere Hotline unter der Nummer: +49 521 305 151 80 an oder schreiben Sie uns eine E-Mail an: bielefeld-mitte@remax.de
Bitte haben Sie Verständnis dafür, dass wir nur Anfragen mit kompletten Kontaktdaten (Name, Anschrift, Telefonnummer und E-Mail Adresse) beantworten können.
Die Informationen in diesem Exposé berufen auf Angaben, die wir vom Veräußerer und / oder Dritten erhalten haben. Für deren Richtigkeit und Vollständigkeit übernehmen wir keine Haftung.
Wenn Sie jemanden kennen, der jetzt oder später seine Immobilie verkaufen möchte, melden Sie sich gerne bei uns.
Es winkt Ihnen eine Tippgeberprovision.
Wer wir sind?
- Weltweit in über 100 Ländern mit über 100.000 RE/MAX Immobilienmaklern die Nummer 1.
- Wir vermitteln Ihre Immobilie und haben über 1.000 Suchkunden, die sofort kaufen können.
- Was ist Ihre Immobilie wert? Kostenlose Wertermittlung Ihrer Immobilie durch unsere geschulten RE/MAX Immobilienmakler!
Sie möchten auch in den Traumberuf als RE/MAX Immobilienmakler einsteigen, dann bewerben Sie sich JETZT!
RE/MAX Immobilienmakler (w/m/d)
Gerne auch als Quereinsteiger oder als geförderter Umschüler.
Bewerben Sie sich, wenn Sie im Umkreis von 100 km wohnen.
RE/MAX Bielefeld-Mitte - Immo Estate GmbH
Hagenbruchstr. 2b
33602 Bielefeld
Telefon: +49 521 305 151 80
E-Mail: bielefeld-mitte@remax.de
Wir freuen uns auf die Zusammenarbeit.
Sie wollen mehr erfahren?
Wenn Sie uns eine Nachricht über das Kontaktformular senden, melden wir uns schnellstmöglich bei Ihnen:







































