Secret Sale Mehrfamilienhaus 3-bis 5 Wohnungen und EG 1-2 Schaufenster Gesamt ca.500m2 -669.990 Euro
Beschreibung:
Zum Verkauf steht ein attraktives 4-6 Parteien (Möglich) Mehrfamilienhaus mit einer vielseitig nutzbaren Gewerbeeinheit im Erdgeschoss. Diese Immobilie besticht durch ihre hervorragende Lage und die Möglichkeit, sowohl Wohn- als auch Gewerbemieter zu generieren.- BESTE MIETEINNAHMEN MÖGLICH:
1) Aktuell ohne Veränderung wie folgt: 40.000,- ohne Mieterhöhung / Jahr
2) Miete nach kauf mit Erhöhung möglich mit Wohnraum und Laden: 45.000,-/Jahr
3) Nach Neuvermietung: ca.50.000,- / Jahr möglich.
Die Gewerbeeinheit im Erdgeschoss eignet sich ideal für verschiedene Branchen, wie z.B. Einzelhandel, Büros oder Dienstleistungen. Sie verfügt über große Fensterfronten und bietet ausreichend Platz zur individuellen Gestaltung, um Ihren geschäftlichen Ideen freien Lauf zu lassen.
Das Mehrfamilienhaus bietet eine hervorragende Investitionsmöglichkeit, da die Nachfrage nach Wohnraum in dieser Region kontinuierlich steigt. Die solide Bausubstanz und die Möglichkeit, die Einheiten in mehrere Wohneinheiten aufzuteilen, verleihen diesem Objekt zusätzliches Potenzial.
Dieses Angebot richtet sich an Anleger, die nach einer stabilen Einnahmequelle suchen, sowie an Eigennutzer, die ideale Lebens- und Arbeitsbedingungen unter einem Dach realisieren möchten. Die Kombination aus Wohnflair und gewerblichem Handlungsspielraum ist selten und wird deshalb schnell begehrt sein. Mögliche Mieteinnahmen belaufen sich auf ca. 50.000-60.000,-< € / Pro Jahr
Zusätzliche Informationen:
Für weitere Informationen und zur Vereinbarung eines Besichtigungstermins kontaktieren Sie uns bitte direkt.
Rufen Sie jetzt an und vereinbaren Sie einen Besichtigungstermin!
Ugur Cömertpay
Immobilienmakler IHK RE/MAX § 34c
Mobil: +49 (0) 171 30 50 653
E-Mail: ugur.coemertpay@remax.de
Lagebeschreibung:
Das Mehrfamilienhaus befindet sich in einer gut frequentierten Gegend, die für Wohnzwecke al3-5 Einheiten oder AIR BNB möglich ist, sowie im Erdgeschoss für gewerbliche Nutzung optimal geeignet ist. In unmittelbarer Nähe finden sich zahlreiche Einkaufsmöglichkeiten, Restaurants und öffentliche Verkehrsanbindungen, die für sowohl Mieter als auch Kunden von Vorteil sind.Ausstattung:
Energieausweis:
- A+
- A
- B
- C
- D
- E
- F
- G
- H
- Baujahr:
- 1928
- Endenergieverbrauch:
- 155,1 kWh/(m²a)
- Energieausweis:
- Verbrauchsausweis
- Energieeffizienzklasse:
- E
- Energieausweis gültig bis:
- 23.08.2028
- wesentlicher Energieträger:
- Gas
- Baujahr lt. Energieausweis:
- 1928
Ausstattungsbeschreibung:
- Baujahr: 1928- Garage
- Keller / Flur ca.160m2
- Gewerbefläche: 60m2 + Wohnung 100m2 oder = ca. 160 m² Oder EG komplett als Gewerbefläche / Laden möglich
- Wohnfläche: ca. 468 m²
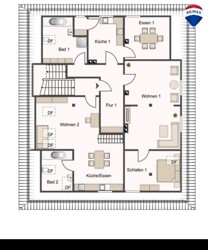
Aufteilung:
- EG Wohnraum oder Gewerbe möglich
- 1 OG ca. 160 m²
- 2. OG Wohnung 1. ca. 60 m²
- 2. OG Wohnung 2. ca. 60 m²
-Gesamt Wohn+Nutzfläche: ca.600
- Anzahl der Wohneinheiten: 3-bis 5 möglich.
Sonstige Angaben:
RE/MAX Bielefeld-MitteIhre Zufriedenheit liegt uns am Herzen.
Wenn Sie innerhalb von 24 Stunden auf Ihre Anfrage keine Rückantwort erhalten haben, rufen Sie bitte unsere Hotline unter der Nummer: +49 521 305 151 80 an oder schreiben Sie uns eine E-Mail an: bielefeld-mitte@remax.de
Bitte haben Sie Verständnis dafür, dass wir nur Anfragen mit kompletten Kontaktdaten (Name, Anschrift, Telefonnummer und E-Mail Adresse) beantworten können.
Wenn Sie jemanden kennen, der jetzt oder später seine Immobilie verkaufen möchte, melden Sie sich gerne bei uns.
Es winkt Ihnen eine Tippgeberprovision.
Wer wir sind?
- Weltweit in über 100 Ländern mit über 100.000 RE/MAX Immobilienmaklern die Nummer 1.
- Wir vermitteln Ihre Immobilie und haben über 1.000 Suchkunden, die sofort kaufen können.
- Was ist Ihre Immobilie wert? Kostenlose Wertermittlung Ihrer Immobilie durch unsere geschulten RE/MAX Immobilienmakler!
Sie möchten auch in den Traumberuf als RE/MAX Immobilienmakler einsteigen, dann bewerben Sie sich JETZT!
RE/MAX Immobilienmakler (w/m/d)
Gerne auch als Quereinsteiger oder als geförderter Umschüler.
Bewerben Sie sich, wenn Sie im Umkreis von 100 km wohnen.
RE/MAX Bielefeld-Mitte - Immo Estate GmbH
Hagenbruchstr. 2b
33602 Bielefeld
Telefon: +49 521 305 151 80
E-Mail: bielefeld-mitte@remax.de
Wir freuen uns auf die Zusammenarbeit.
Da wir Objektangaben nicht selbst ermitteln, übernehmen wir hierfür keine Gewähr. Dieses Exposé ist nur für Sie persönlich bestimmt. Eine Weitergabe an Dritte ist an unsere ausdrückliche Zustimmung gebunden und unterbindet nicht unseren Provisionsanspruch bei Zustandekommen eines Vertrages. Alle Gespräche sind über unser Büro zu führen. Bei Zuwiderhandlung behalten wir uns Schadenersatz bis zur Höhe der Provisionsansprüche ausdrücklich vor. Zwischenverkauf ist nicht ausgeschlossen.
Die Informationen in diesem Exposé berufen auf Angaben, die wir vom Veräußerer und / oder Dritten erhalten haben.
Für deren Richtigkeit und Vollständigkeit übernehmen wir keine Haftung.
Sie wollen mehr erfahren?
Wenn Sie uns eine Nachricht über das Kontaktformular senden, melden wir uns schnellstmöglich bei Ihnen:








