Wohn- & Geschäftshaus mit Potenzial – Ladenlokal, Büro oder Gewerbeeinheit!
Beschreibung:
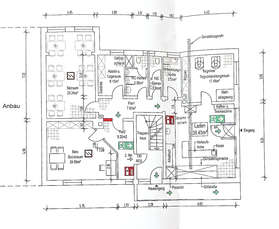
Dieses freistehende Ladenlokal aus dem Baujahr 1982 überzeugt durch seine solide Massivbauweise, eine Gesamtfläche von ca. 160 m² sowie ein großzügiges Grundstück von rund 910 m². Das Objekt bietet ideale Voraussetzungen für vielfältige Nutzungen – etwa als Büro- oder Dienstleistungsstandort, Praxis oder Verkaufsfläche.Im Erdgeschoss befinden sich ein Empfangs- bzw. Bürobereich, ein weiteres Büro im hinteren Bereich, ein Ausstellungs- oder Verkaufsraum, ein Besprechungsraum, eine Küche sowie zwei separate WCs. Der Grundriss ist funktional gestaltet und ermöglicht eine flexible Raumaufteilung.
Das Gebäude ist unterkellert und bietet dort zusätzliche Nutz- und Lagerräume, darunter einen Waschkeller, zwei Abstellräume und einen Kellerflur. Über das Treppenhaus gelangt man zudem in das ausgebaute Dachgeschoss, das zusätzlichen Raum für Büro- oder Archivzwecke bietet.
Die Immobilie wurde in massiver Bauweise mit Stahlbetondecken errichtet. Das Satteldach mit Gauben sorgt für eine angenehme Raumhöhe und natürliche Belichtung. Der Eingangsbereich ist gepflegt, mit einer Holzeingangstür und Lichtausschnitt sowie einer kleinen Überdachung.
Zur technischen Ausstattung zählen eine Zentralheizung (Gas) mit Radiatoren, eine durchschnittliche Elektroinstallation mit Netzwerkverkabelung, Klingelanlage und Telefonanschluss sowie die öffentliche Wasser- und Abwasserversorgung. Warmwasser wird über ein Untertischgerät in der Küche bereitgestellt.
Das Objekt bietet eine solide bauliche Substanz, ein gepflegtes Erscheinungsbild und überzeugt durch seine flexible Nutzbarkeit – ideal für Unternehmer, Freiberufler oder Investoren, die ein funktionales und vielseitig nutzbares Ladenlokal in guter Lage suchen.
Lagebeschreibung:
Die Immobilie befindet sich in einer gut angebundenen Lage in Bielefeld. Der öffentliche Nahverkehr ist hervorragend ausgebaut, mit einer Tram- und Bushaltestelle in nur wenigen Gehminuten Entfernung. Die Autobahn A33 ist ebenfalls schnell erreichbar, was eine zügige Anbindung an das überregionale Straßennetz gewährleistet.Für den täglichen Bedarf sind mehrere Supermärkte und Bäckereien in der Nähe, darunter ein Lidl und ein ALDI Nord. Auch für Familien ist die Umgebung ideal, mit mehreren Kindergärten und Schulen in unmittelbarer Nähe.
Freizeitmöglichkeiten sind zahlreich vorhanden. Der Botanische Garten und die Lutterquelle bieten Erholung im Grünen, während das Movement Theater und die Dr. Oetker Welt kulturelle Highlights darstellen. Sportbegeisterte finden in der Nähe Fitnessstudios und Sportplätze.
Der Flughafen Paderborn/Lippstadt ist etwa 45 Kilometer entfernt und bietet eine gute Anbindung für nationale und internationale Reisen.
Ausstattung:
Energieausweis:
- Baujahr:
- 1982
- Energieausweis:
- liegt zur Besichtigung vor
Ausstattungsbeschreibung:
Ladenlokal - Freistehend, unterkellert & mit ausgebautem Dachgeschoss_____________________________________________
Baujahr: 1982
Anzahl Zimmer: 6
Gesamtfläche: ca. 160 m²
Grundstücksgröße: ca. 910 m²
_____________________________________________
1 Büro hinten:
1 Empfang/Büro vorne
1 Ausstellungsraum
1 Besprechungsraum
1 Küche
2 WCs
Treppenhaus
Kellerflur
1 Waschkeller
2 Kellerräume
_____________________________________________
Bauweise und Konstruktion
- Massivbauweise mit Streifenfundament.
- Keller: Mauerwerkskonstruktion
- Umfassungswände: Mauerwerk, verputzt (Sockel teilweise schadhaft)
- Innenwände: Mauerwerk
- Geschossdecken: Stahlbeton
- Treppen: Stahlbeton mit Marmorbelag und Metallgeländer
- Dachkonstruktion: Holzdachstuhl mit Gauben, Satteldachform
- Der Hauseingang ist gepflegt; Holzeingangstür mit Lichtausschnitt, Überdachung vorhanden.
_____________________________________________
Technische Ausstattung
- Wasserversorgung: Anschluss an das öffentliche Trinkwassernetz
- Abwasser: Ableitung in das kommunale Kanalnetz
- Elektroinstallation: durchschnittliche Ausstattung mit Lichtauslässen, Steckdosen, Klingelanlage, Telefonanschluss, Netzwerkverkabelung
- Heizung: Zentralheizung mit flüssigen Brennstoffen (Gas) Stahlradiatoren mit Thermostatventilen, teilweise Gussheizkörper
- Warmwasserversorgung: Untertischgerät in der Küche
Sonstige Angaben:
RE/MAX Bielefeld-MitteIhre Zufriedenheit liegt uns am Herzen.
Wenn Sie innerhalb von 24 Stunden auf Ihre Anfrage keine Rückantwort erhalten haben, rufen Sie bitte unsere Hotline unter der Nummer: +49 521 305 151 80 an oder schreiben Sie uns eine E-Mail an: bielefeld-mitte@remax.de
Bitte haben Sie Verständnis dafür, dass wir nur Anfragen mit kompletten Kontaktdaten (Name, Anschrift, Telefonnummer und E-Mail Adresse) beantworten können.
Wenn Sie jemanden kennen, der jetzt oder später seine Immobilie verkaufen möchte, melden Sie sich gerne bei uns.
Es winkt Ihnen eine Tippgeberprovision.
Wer wir sind?
- Weltweit in über 100 Ländern mit über 100.000 RE/MAX Immobilienmaklern die Nummer 1.
- Wir vermitteln Ihre Immobilie und haben über 1.000 Suchkunden, die sofort kaufen können.
- Was ist Ihre Immobilie wert? Kostenlose Wertermittlung Ihrer Immobilie durch unsere geschulten RE/MAX Immobilienmakler!
Sie möchten auch in den Traumberuf als RE/MAX Immobilienmakler einsteigen, dann bewerben Sie sich JETZT!
RE/MAX Immobilienmakler (w/m/d)
Gerne auch als Quereinsteiger oder als geförderter Umschüler.
Bewerben Sie sich, wenn Sie im Umkreis von 100 km wohnen.
RE/MAX Bielefeld-Mitte - Immo Estate GmbH
Hagenbruchstr. 2b
33602 Bielefeld
Telefon: +49 521 305 151 80
E-Mail: bielefeld-mitte@remax.de
Wir freuen uns auf die Zusammenarbeit.
Da wir Objektangaben nicht selbst ermitteln, übernehmen wir hierfür keine Gewähr. Dieses Exposé ist nur für Sie persönlich bestimmt. Eine Weitergabe an Dritte ist an unsere ausdrückliche Zustimmung gebunden und unterbindet nicht unseren Provisionsanspruch bei Zustandekommen eines Vertrages. Alle Gespräche sind über unser Büro zu führen. Bei Zuwiderhandlung behalten wir uns Schadenersatz bis zur Höhe der Provisionsansprüche ausdrücklich vor. Zwischenverkauf ist nicht ausgeschlossen.
Die Informationen in diesem Exposé berufen auf Angaben, die wir vom Veräußerer und / oder Dritten erhalten haben.
Für deren Richtigkeit und Vollständigkeit übernehmen wir keine Haftung.
Sie wollen mehr erfahren?
Wenn Sie uns eine Nachricht über das Kontaktformular senden, melden wir uns schnellstmöglich bei Ihnen:






