Gartengeschoss vom Dreifamilienhaus in ruhiger Lage in Eißendorf zu verkaufen
Beschreibung:
Herzlich Willkommen in Hamburg - Eißendorf - 20 Minuten Autofahrt in die Hamburger Innenstadt.Schöne, moderne 2-Zimmer Eigentumswohnung (Gartengeschoss) sucht neuen Bewohner!
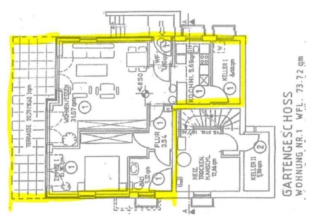
Die 2-Zimmerwohnung mit eigenem Eingang, liegt im Gartengeschoss eines Dreifamilienhauses, welches 1998 gebaut wurde. Auf ca. 80m² können Sie sich rundum wohl fühlen.
Im grossen Wohn-/Esszimmer kann eine gemütliche Sitzgruppe aufgestellt werden, so dass man nach einem anstrengenden Arbeitstag wunderbar entspannen kann. Ein Esstisch mit Stühlen findet ebenfalls Platz. Hier kann man in fröhlicher Runde mit Freunden essen oder aber auch einen lustiger Spieleabend erleben.
Das Schlafzimmer bietet genügend Platz für ein grosses Bett und einen Kleiderschrank.
Das moderne Badezimmer ist mit einer Dusche ausgestattet und hat ein Fenster. Die Küche ist modern ausgestattet.
Die Wohnung bietet einen Vorratsraum, wo die Waschmaschine und der Staubsauger ihren Platz finden.
Die Terrasse bietet genügend Platz um einen Tisch mit Stühlen hinzustellen und natürlich einen Grill. Hier steht einer Grillparty nichts mehr im Wege.
In der ganzen Wohnung wurde eine Fussbodenheizung verlegt, damit niemand mehr kalte Füsse im Winter bekommt.
Die Informationen in diesem Exposé berufen auf Angaben, die wir vom Veräußerer und / oder Dritten erhalten haben. Für deren Richtigkeit und Vollständigkeit übernehmen wir keine Haftung.
Lagebeschreibung:
Die Wohnung liegt an einer ruhigen Strasse im Grünen in Eißendorf. Bushaltestellen, Einkaufsmöchglichkeiten und Restaurants liegen in der Nähe.Südlich der Elbe geht's rauf und runter. Viel Wald macht Eißendorf zu einem attraktiven Wohngebiet am Rande Harburgs.
Ausstattung:
Energieausweis:
- A+
- A
- B
- C
- D
- E
- F
- G
- H
- Baujahr:
- 1998
- Endenergiebedarf:
- 125,6 kWh/(m²a)
- Energieausweis:
- Bedarfsausweis
- Energieausweis gültig bis:
- 15.02.2027
- wesentlicher Energieträger:
- Gas
Ausstattungsbeschreibung:
- Fußbodenheizung- Terrasse
- Bodentiefe Fenster
- Einbauküche
- 1 Stellplatz inkl.
Sonstige Angaben:
RE/MAX HamburgIhre Zufriedenheit liegt uns am Herzen.
Wir freuen uns auf die Zusammenarbeit.
Wenn Sie innerhalb von 24 Stunden auf Ihre Anfrage keine Rückantwort erhalten haben, rufen Sie bitte unsere Hotline unter der Nummer: +49 (0) 40 52 476 71-0 an oder schreiben Sie uns eine E-Mail an:
hamburg-eppendorf@remax.de
Bitte haben Sie Verständnis dafür, dass wir nur Anfragen mit kompletten Kontaktdaten (Name, Anschrift, Telefonnummer und E-Mail Adresse) beantworten können.
Wenn Sie jemanden kennen, der jetzt oder später seine Immobilie verkaufen möchte, melden Sie sich gerne bei uns.
Es winkt Ihnen eine Tippgeberprovision.
DEKRA zertifizierte kostenlose Wertermittlung Ihrer Immobilie durch unsere geschulten RE/MAX Immobilienmakler!
Was ist Ihre Immobilie wert?
Wir vermitteln Ihre Immobilie und haben über 1.000 Suchkunden, die sofort kaufen können.
Weltweit in über 100 Ländern mit über 100.000 RE/MAX Immobilienmaklern die Nummer 1.
RE/MAX Immobilienmakler (m/w/d)
Sie möchten auch in den Traumberuf als RE/MAX Immobilienmakler einsteigen, dann bewerben Sie sich JETZT!
Gerne auch als Quereinsteiger oder als geförderter Umschüler.
Bewerben Sie sich, wenn Sie im Umkreis von 100 km wohnen.
RE/MAX 1A Immobilien GmbH
Eppendorfer Weg 279
20251 Hamburg
Telefon +49 (0) 40 52 476 71-0
E-Mail hamburg-eppendorf@remax.de
Die Informationen in diesem Exposé berufen auf Angaben, die wir vom Veräußerer und / oder Dritten erhalten haben.
Für deren Richtigkeit und Vollständigkeit übernehmen wir keine Haftung.




















